Find rækkehus

Rækkehus Kr. 12.995 kr./md.
Kolbæk Mark 132, 8800 Viborg

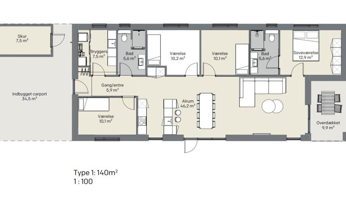
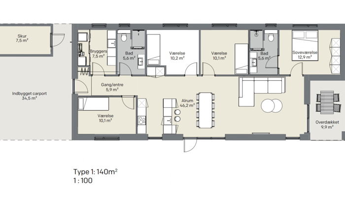
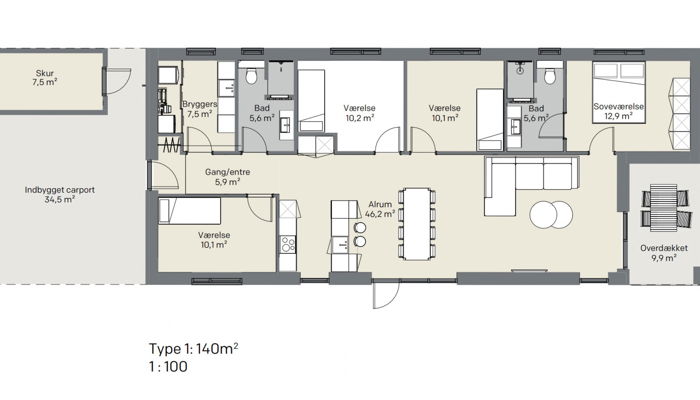
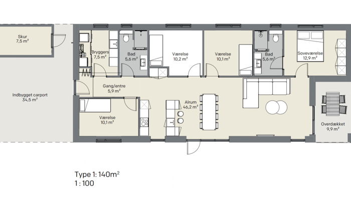
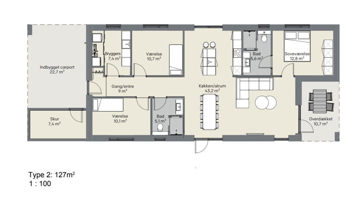
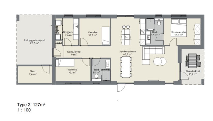
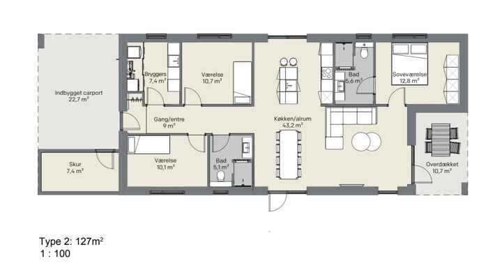
I vores 4-værelses rækkehuse i Koldbæk Mark får du ikke bare et hus, men et hjem, hvor der er plads til hele livet. Med 127 m², fire værelser og to badeværelser er der masser af plads til at leve, vokse og dele gode stunder med familien. Rækkehuset kommer med indbygget carport, bryggers, stort skur samt en overdækket terrasse. Rækkehuset ligger på en stor grund som giver dig mulighed for at nyde både morgen- og aftensolen, mens haven danner ramme om både leg og afslapning. Her er det nemt at finde ro og samtidig være en del af et livligt fællesskab, hvor både voksne og børn kan trives. I Koldbæk Mark får du mere end bare en bolig – du får et hjem i et nabolag, hvor du kan leve livet på dine egne præmisser, samtidig med at du er tæt på både natur og byens muligheder.

127 m²
4 vær.
Ledig pr. 01.06.2026
Rækkehus Kr. 12.495 kr./md.
Skabermøllevej 41, 8800 Viborg

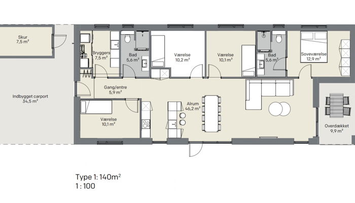
5 værelses rækkehus med to badeværelser, carport og walk-in Dette rækkehus er skabt med fokus på optimal pladsudnyttelse og materialer af høj kvalitet. Boligerne indeholder 2, badeværelser, et soveværelse med privat badeværelse og walk-in-closet, to lyse værelser, et stort badeværelse samt en stue i åben forbindelse med køkkenet og tilhørende depot. Derudover byder rækkehuset på et kombineret entré og bryggers. Udenfor venter en stor privat have med terrasse og en tilhørende carport. Beliggenheden er unik – centralt placeret i attraktive Arnbjerg med grønne fællesområder og skov lige i nærheden. Stisystemet giver nem adgang til midtbyen, skoler, dagligvarebutikker og sportsfaciliteter. Boligerne i Skabermøllelunden er moderne i design og funktionalitet. De opføres med ensidig taghældning beklædt med tagpap og en stilfuld facadetegl fra Strøjer. Vinduerne er 3-lags energiruder i træ/alu, og køkken samt badeværelse leveres af HTH. Opvarmningen sker med en energieffektiv luft-til-vand varmepumpe, som sikrer lave driftsomkostninger. Projektet er udviklet af det erfarne byggeselskab Vestergaard Konstruktion, der har stået bag flere succesfulde byggerier i Viborg-området. Her får du et gennemført byggeri med gennemtænkte løsninger og høj kvalitet.

125 m²
5 vær.
Ledig pr. 15.06.2026
Rækkehus Kr. 12.795 kr./md.
Sagasvej 128, 7800 Skive

I vores 5-værelses rækkehuse i Skive får du ikke bare et hus, men et hjem, hvor der er plads til hele livet. Med 120 m², fire værelser og to badeværelser er der masser af plads til at leve, vokse og dele gode stunder med familien. Hver dag bliver lettere, når både børn og voksne har deres egen plads, og når fællesområderne er åbne og indbydende. De to terrasser giver dig mulighed for at nyde både morgen- og aftensolen, mens haven danner ramme om både leg og afslapning. Her er det nemt at finde ro og samtidig være en del af et livligt fællesskab, hvor både voksne og børn kan trives. I Skive får du mere end bare en bolig – du får et hjem i et nabolag, hvor du kan leve livet på dine egne præmisser, samtidig med at du er tæt på både natur og byens muligheder.

120 m²
5 vær.
Ledig pr. 01.09.2026
Rækkehus Kr. 12.795 kr./md.
Sagasvej 132, 7800 Skive

I vores 5-værelses rækkehuse i Skive får du ikke bare et hus, men et hjem, hvor der er plads til hele livet. Med 120 m², fire værelser og to badeværelser er der masser af plads til at leve, vokse og dele gode stunder med familien. Hver dag bliver lettere, når både børn og voksne har deres egen plads, og når fællesområderne er åbne og indbydende. De to terrasser giver dig mulighed for at nyde både morgen- og aftensolen, mens haven danner ramme om både leg og afslapning. Her er det nemt at finde ro og samtidig være en del af et livligt fællesskab, hvor både voksne og børn kan trives. I Skive får du mere end bare en bolig – du får et hjem i et nabolag, hvor du kan leve livet på dine egne præmisser, samtidig med at du er tæt på både natur og byens muligheder.

120 m²
5 vær.
Ledig pr. 01.09.2026
Rækkehus Kr. 12.795 kr./md.
Sagasvej 90, 7800 Skive

I vores 5-værelses rækkehuse i Skive får du ikke bare et hus, men et hjem, hvor der er plads til hele livet. Med 120 m², fire værelser og to badeværelser er der masser af plads til at leve, vokse og dele gode stunder med familien. Hver dag bliver lettere, når både børn og voksne har deres egen plads, og når fællesområderne er åbne og indbydende. De to terrasser giver dig mulighed for at nyde både morgen- og aftensolen, mens haven danner ramme om både leg og afslapning. Her er det nemt at finde ro og samtidig være en del af et livligt fællesskab, hvor både voksne og børn kan trives. I Skive får du mere end bare en bolig – du får et hjem i et nabolag, hvor du kan leve livet på dine egne præmisser, samtidig med at du er tæt på både natur og byens muligheder.

120 m²
5 vær.
Ledig pr. 15.10.2026
Rækkehus Kr. 11.995 kr./md.
Sellingvej 2A, 8370 Hadsten

Vores fire-værelses rækkehus på 113 m² er indrettet til en hverdag, der glider let – hvor du og familien kan være sammen i det store fællesrum, og samtidig have mulighed for at trække jer, når der er brug for ro. Husets naturlige samlingspunkt er køkken/alrummet på 47,3 m², som giver en helt særlig rummelighed i hverdagen: her kan madlavning, gæster, avisen på bordet, lektier, leg og de stille stunder i sofaen leve side om side, hvor der er plads til at være sammen og have plads omkring jer. Rummet inviterer til en bevidst indretning, hvor stuen tænkes ind som en del af helheden, så I får ét stort hjerterum, der samler familien – og gør det nemt at følge hinanden gennem dagen, uanset om nogen står ved køkkenøen, andre sidder ved spisebordet, eller børnene leger i nærheden. Samtidig er planløsningen skabt, så I får mulighed for at trække jer, når der er brug for det: de ekstra værelser kan fungere som børneværelser, men lige så naturligt som kontor, hobbyrum eller et gæsteværelse til dem, der kommer forbi i weekenden – eller til børn og børnebørn, der gerne vil blive lidt længere. Badeværelset ligger centralt placeret tæt ved værelserne, så det er nemt at nå fra hele huset, og det gør især morgener og hverdagsrytmer mere ukomplicerede. Allerede når I træder ind, mærker I også den gennemtænkte hverdagsluksus i entré/bryggers: her er der tre skabe og en vask, og teknikken er gemt pænt af vejen bag skydedøre, så rummet føles roligt og ryddeligt, selv når livet er i fuld gang. På den ene side er der plads til knagerække og bænk, så sko og overtøj får sin naturlige plads, og ved siden af skabene kan I hænge et spejl og måske have hundekurven, hvis I har en firbenet ven med i familien. For hos os er kæledyr nemlig velkomne. Det hele er tænkt, så hjemmet hjælper jer med at holde overblik og skabe flow – med plads til både nærvær, privatliv og de små hverdagsrutiner, der gør, at man hurtigt begynder at føle sig hjemme.

113 m²
4 vær.
Ledig pr. 01.11.2026
Rækkehus Kr. 12.250 kr./md.
Sellingvej 2B, 8370 Hadsten

Vores fire-værelses rækkehus på 113 m² er indrettet til en hverdag, der glider let – hvor du og familien kan være sammen i det store fællesrum, og samtidig have mulighed for at trække jer, når der er brug for ro. Husets naturlige samlingspunkt er køkken/alrummet på 47,3 m², som giver en helt særlig rummelighed i hverdagen: her kan madlavning, gæster, avisen på bordet, lektier, leg og de stille stunder i sofaen leve side om side, hvor der er plads til at være sammen og have plads omkring jer. Rummet inviterer til en bevidst indretning, hvor stuen tænkes ind som en del af helheden, så I får ét stort hjerterum, der samler familien – og gør det nemt at følge hinanden gennem dagen, uanset om nogen står ved køkkenøen, andre sidder ved spisebordet, eller børnene leger i nærheden. Samtidig er planløsningen skabt, så I får mulighed for at trække jer, når der er brug for det: de ekstra værelser kan fungere som børneværelser, men lige så naturligt som kontor, hobbyrum eller et gæsteværelse til dem, der kommer forbi i weekenden – eller til børn og børnebørn, der gerne vil blive lidt længere. Badeværelset ligger centralt placeret tæt ved værelserne, så det er nemt at nå fra hele huset, og det gør især morgener og hverdagsrytmer mere ukomplicerede. Allerede når I træder ind, mærker I også den gennemtænkte hverdagsluksus i entré/bryggers: her er der tre skabe og en vask, og teknikken er gemt pænt af vejen bag skydedøre, så rummet føles roligt og ryddeligt, selv når livet er i fuld gang. På den ene side er der plads til knagerække og bænk, så sko og overtøj får sin naturlige plads, og ved siden af skabene kan I hænge et spejl og måske have hundekurven, hvis I har en firbenet ven med i familien. For hos os er kæledyr nemlig velkomne. Det hele er tænkt, så hjemmet hjælper jer med at holde overblik og skabe flow – med plads til både nærvær, privatliv og de små hverdagsrutiner, der gør, at man hurtigt begynder at føle sig hjemme.

113 m²
4 vær.
Ledig pr. 01.11.2026
Rækkehus Kr. 12.250 kr./md.
Sellingvej 2C, 8370 Hadsten

Vores fire-værelses rækkehus på 113 m² er indrettet til en hverdag, der glider let – hvor du og familien kan være sammen i det store fællesrum, og samtidig have mulighed for at trække jer, når der er brug for ro. Husets naturlige samlingspunkt er køkken/alrummet på 47,3 m², som giver en helt særlig rummelighed i hverdagen: her kan madlavning, gæster, avisen på bordet, lektier, leg og de stille stunder i sofaen leve side om side, hvor der er plads til at være sammen og have plads omkring jer. Rummet inviterer til en bevidst indretning, hvor stuen tænkes ind som en del af helheden, så I får ét stort hjerterum, der samler familien – og gør det nemt at følge hinanden gennem dagen, uanset om nogen står ved køkkenøen, andre sidder ved spisebordet, eller børnene leger i nærheden. Samtidig er planløsningen skabt, så I får mulighed for at trække jer, når der er brug for det: de ekstra værelser kan fungere som børneværelser, men lige så naturligt som kontor, hobbyrum eller et gæsteværelse til dem, der kommer forbi i weekenden – eller til børn og børnebørn, der gerne vil blive lidt længere. Badeværelset ligger centralt placeret tæt ved værelserne, så det er nemt at nå fra hele huset, og det gør især morgener og hverdagsrytmer mere ukomplicerede. Allerede når I træder ind, mærker I også den gennemtænkte hverdagsluksus i entré/bryggers: her er der tre skabe og en vask, og teknikken er gemt pænt af vejen bag skydedøre, så rummet føles roligt og ryddeligt, selv når livet er i fuld gang. På den ene side er der plads til knagerække og bænk, så sko og overtøj får sin naturlige plads, og ved siden af skabene kan I hænge et spejl og måske have hundekurven, hvis I har en firbenet ven med i familien. For hos os er kæledyr nemlig velkomne. Det hele er tænkt, så hjemmet hjælper jer med at holde overblik og skabe flow – med plads til både nærvær, privatliv og de små hverdagsrutiner, der gør, at man hurtigt begynder at føle sig hjemme.

113 m²
4 vær.
Ledig pr. 01.11.2026
Rækkehus Kr. 12.250 kr./md.
Sellingvej 2D, 8370 Hadsten

Vores fire-værelses rækkehus på 113 m² er indrettet til en hverdag, der glider let – hvor du og familien kan være sammen i det store fællesrum, og samtidig have mulighed for at trække jer, når der er brug for ro. Husets naturlige samlingspunkt er køkken/alrummet på 47,3 m², som giver en helt særlig rummelighed i hverdagen: her kan madlavning, gæster, avisen på bordet, lektier, leg og de stille stunder i sofaen leve side om side, hvor der er plads til at være sammen og have plads omkring jer. Rummet inviterer til en bevidst indretning, hvor stuen tænkes ind som en del af helheden, så I får ét stort hjerterum, der samler familien – og gør det nemt at følge hinanden gennem dagen, uanset om nogen står ved køkkenøen, andre sidder ved spisebordet, eller børnene leger i nærheden. Samtidig er planløsningen skabt, så I får mulighed for at trække jer, når der er brug for det: de ekstra værelser kan fungere som børneværelser, men lige så naturligt som kontor, hobbyrum eller et gæsteværelse til dem, der kommer forbi i weekenden – eller til børn og børnebørn, der gerne vil blive lidt længere. Badeværelset ligger centralt placeret tæt ved værelserne, så det er nemt at nå fra hele huset, og det gør især morgener og hverdagsrytmer mere ukomplicerede. Allerede når I træder ind, mærker I også den gennemtænkte hverdagsluksus i entré/bryggers: her er der tre skabe og en vask, og teknikken er gemt pænt af vejen bag skydedøre, så rummet føles roligt og ryddeligt, selv når livet er i fuld gang. På den ene side er der plads til knagerække og bænk, så sko og overtøj får sin naturlige plads, og ved siden af skabene kan I hænge et spejl og måske have hundekurven, hvis I har en firbenet ven med i familien. For hos os er kæledyr nemlig velkomne. Det hele er tænkt, så hjemmet hjælper jer med at holde overblik og skabe flow – med plads til både nærvær, privatliv og de små hverdagsrutiner, der gør, at man hurtigt begynder at føle sig hjemme.

113 m²
4 vær.
Ledig pr. 01.11.2026

Nybyggede rækkehuse til leje i Jylland

Drømmer du om et nyt rækkehus i nogle af de skønneste områder i Midtjylland? Dit drømmehjem er lige inden for rækkevidde. Vores nybyggede rækkehuse til leje kombinerer stilfuldt design med praktisk funktionalitet. Uanset om du søger et rummeligt hjem til familien eller ønsker ekstra plads til dine aktiviteter, er vores rækkehuse den perfekte lejebolig.

 

Se vores rækkehuse i Viborg

Se vores rækkehuse i Hadsten

Se vores rækkehuse i Skive

Rækkehus til leje med have

Moderne boligkomfort og fællesskabsfornemmelse

Lej et rækkehus og nyd fordelene ved moderne boligkomfort uden besværet med ejerskab. Vores nyopførte rækkehuse tilbyder veludstyrede køkkener, rummelige stuer og moderne badeværelser. Men det stopper ikke her – vores fællesfaciliteter som legepladser og grønne områder skaber en hyggelig fællesskabsfornemmelse.

 

Plads til personlig udfoldelse

Med vores rækkehuse får du ikke blot et sted at bo, men et hjem, der kan tilpasses dine behov. Med en praktisk rækkehus plantegning kan du nemt indrette dit eget rum. Lav et hjemmekontor, en træningszone eller en hyggelig oase til afslapning – valget er dit.

 

Nærhed til det bedste fra by og natur

Vores lejeboliger er strategisk placeret tæt på både byens faciliteter og naturskønne områder. Du kan nemt nå indkøbsmuligheder, skoler og offentlig transport, mens du stadig kan trække dig tilbage til dit eget private rækkehus. Perfekt for dem, der ønsker at kombinere livet i byen med roen fra naturen.

 

Lej et rækkehus med plads til husdyr

Vi forstår vigtigheden af dit pelsede familiemedlem. Derfor tilbyder vi rækkehuse til leje med husdyr tilladt. Din firbenede ven er velkommen til at dele dit nye hjem med dig. Men husk lige at give os besked først. 

 

Søg blandt ledige rækkehuse nu

Gå ikke glip af chancen for at bo i et nyt rækkehus med alle moderne faciliteter. Udforsk vores udvalg af nye rækkehuse til leje i Jylland og find din perfekte lejebolig i dag. Vores nybyggede rækkehuse venter på dig – skab dit nye hjem nu!

 

Interesseret i at leje?

 

Kontakt os allerede i dag, hvis du er interesseret i at leje en bolig hos os. 

Du er altid velkommen til at tage fat i os, hvis du har spørgsmål til vores lejemål eller ønsker at booke en fremvisning.

Kontakt os på tlf.: 32 25 25 35 eller udlejning@vestergaardestate.dk.